fbpx
Logo LOAH blanco

Costa Crab

Al iniciar el proyecto, el cliente nos puso en contacto con el grupo de arquitectos e ingenieros que estaban llevando el trabajo de reestructurar el espacio disminuyendo el número de paredes y columnas, donde anteriormente estaba una residencia en el primer piso.Nuestro trabajo fue distribuir los espacios internos, definir la parte estética del lugar, y a la vez plasmar la esencia de la marca, con el objetivo de llamar la atención de su público objetivo, puesto que el restaurante se encontraba en un lugar de bastante afluencia comercial.

Despues

Foto 1 del imagenesDespues del proyecto Costa Crab realizado por Loah Diseño interior Foto 2 del imagenesDespues del proyecto Costa Crab realizado por Loah Diseño interior Foto 3 del imagenesDespues del proyecto Costa Crab realizado por Loah Diseño interior Foto 4 del imagenesDespues del proyecto Costa Crab realizado por Loah Diseño interior Foto 5 del imagenesDespues del proyecto Costa Crab realizado por Loah Diseño interior Foto 6 del imagenesDespues del proyecto Costa Crab realizado por Loah Diseño interior Foto 7 del imagenesDespues del proyecto Costa Crab realizado por Loah Diseño interior Foto 8 del imagenesDespues del proyecto Costa Crab realizado por Loah Diseño interior Foto 9 del imagenesDespues del proyecto Costa Crab realizado por Loah Diseño interior Foto 10 del imagenesDespues del proyecto Costa Crab realizado por Loah Diseño interior Foto 11 del imagenesDespues del proyecto Costa Crab realizado por Loah Diseño interior

Antes

Foto 1 del imagenesAntes del proyecto Costa Crab realizado por Loah Diseño interior Foto 2 del imagenesAntes del proyecto Costa Crab realizado por Loah Diseño interior Foto 3 del imagenesAntes del proyecto Costa Crab realizado por Loah Diseño interior Foto 4 del imagenesAntes del proyecto Costa Crab realizado por Loah Diseño interior Foto 5 del imagenesAntes del proyecto Costa Crab realizado por Loah Diseño interior Foto 6 del imagenesAntes del proyecto Costa Crab realizado por Loah Diseño interior Foto 7 del imagenesAntes del proyecto Costa Crab realizado por Loah Diseño interior Foto 8 del imagenesAntes del proyecto Costa Crab realizado por Loah Diseño interior Foto 9 del imagenesAntes del proyecto Costa Crab realizado por Loah Diseño interior Foto 10 del imagenesAntes del proyecto Costa Crab realizado por Loah Diseño interior

Conceptualización

Foto 1 del imagenesConcepto del proyecto Costa Crab realizado por Loah Diseño interior

Buscamos resaltar las características de la marca, con el uso de pequeños detalles significativos, como el uso de mobiliario en los colores del logo y detalles en gypsum que resalten la forma del cangrejo.

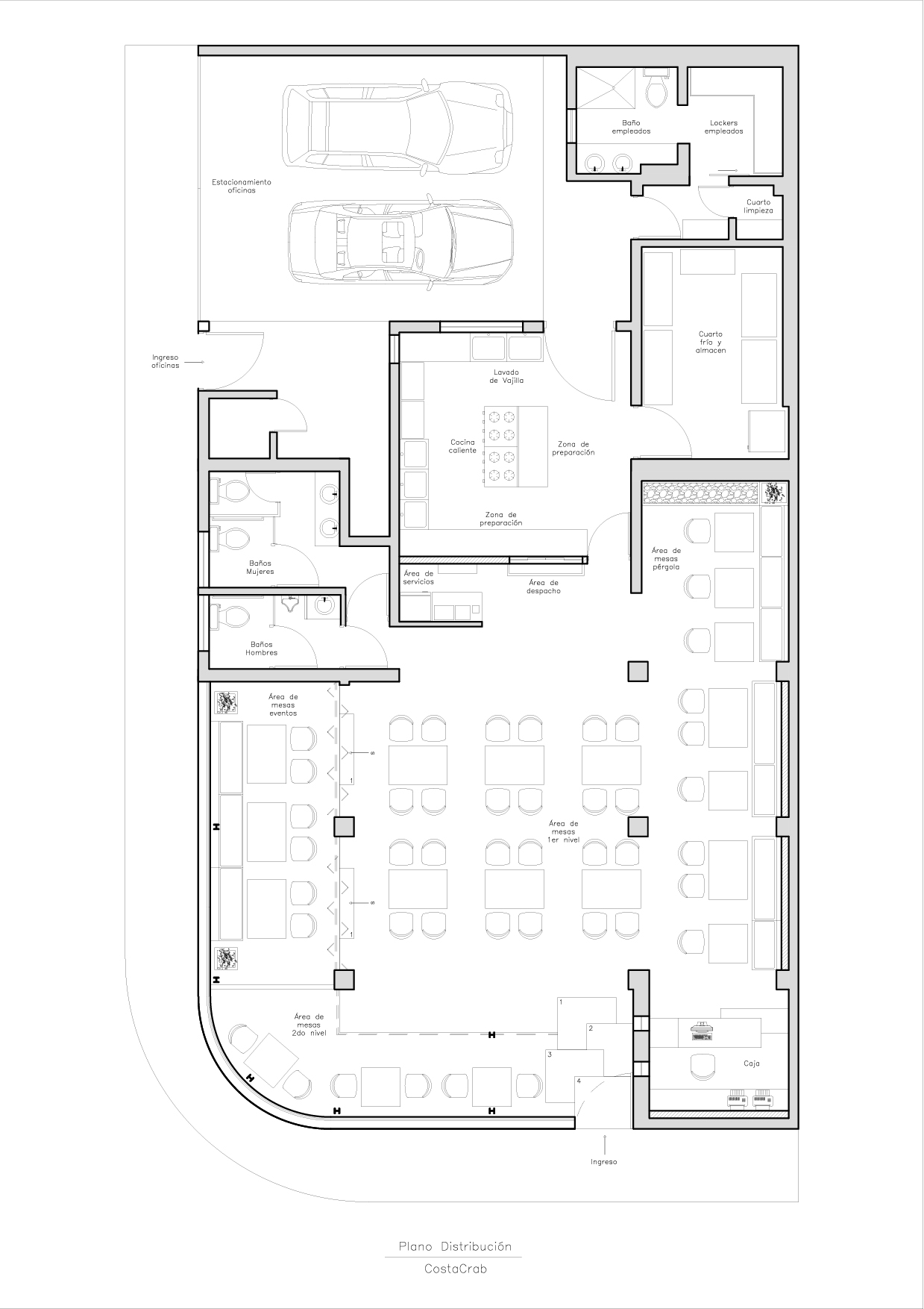
Distribución

Foto 1 del imagenesDistribucion del proyecto Costa Crab realizado por Loah Diseño interior Foto 2 del imagenesDistribucion del proyecto Costa Crab realizado por Loah Diseño interior Foto 3 del imagenesDistribucion del proyecto Costa Crab realizado por Loah Diseño interior

Visualización 3D

Foto 1 del imagenesVisualizacion del proyecto Costa Crab realizado por Loah Diseño interior Foto 2 del imagenesVisualizacion del proyecto Costa Crab realizado por Loah Diseño interior

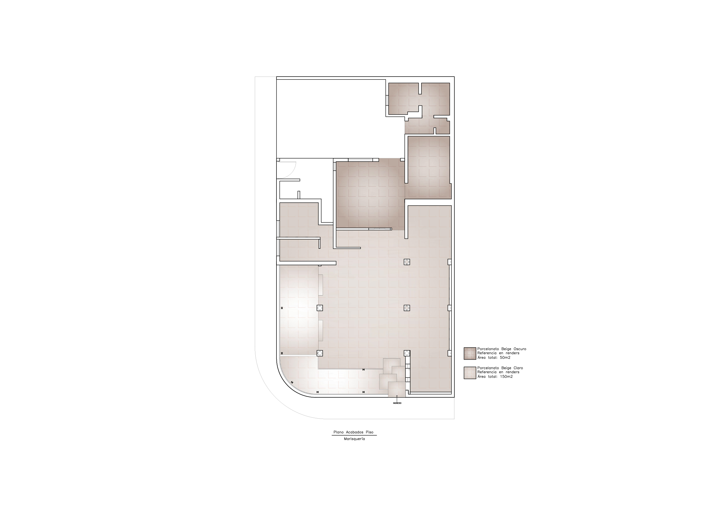
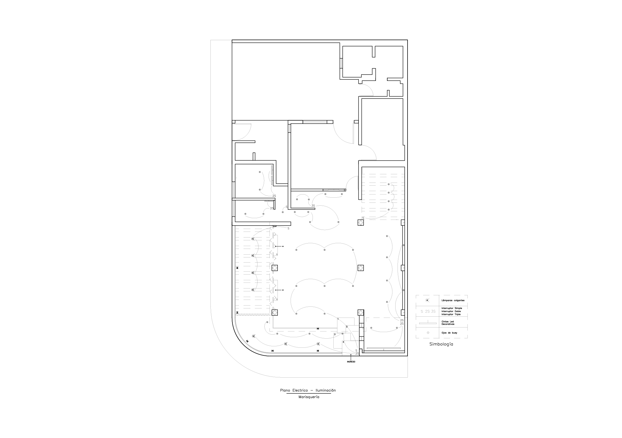
Planos

Foto 1 del imagenesPlanos del proyecto Costa Crab realizado por Loah Diseño interior Foto 2 del imagenesPlanos del proyecto Costa Crab realizado por Loah Diseño interior Foto 3 del imagenesPlanos del proyecto Costa Crab realizado por Loah Diseño interior
Foto principal del proyecto Costa Crab despues del proyecto de LOAH Diseño interior

Costa Crab

Comercial

QUITO - ECUADOR

2017

Servicios

  • CONCEPTUALIZACIÓN DEL ESPACIO
  • PLANOS DE DISTRIBUCIÓN
  • VISUALIZACIÓN 3D
  • PLANOS DETALLADOS PARA CONSTRUCCIÓN

Datos del proyecto

Duración

  • DISEÑO:14 DÍAS
  • PLANIFICACIÓN:7 DÍAS

Equipo

  • DISEÑO:1 PERSONA
  • PLANIFICACIÓN:1 PERSONA

Metodología y herramientas utilizadas

SKETCHUP - LUMION - AUTOCAD

¿Tienes un proyecto parecido?

Si tienes dudas, o quisieras cotizar tu proyecto, conoce la metodología exacta en el siguiente enlace

Conoce la Metodología y Cotiza tu proyecto en menos de 2 minutos

Nuestras redes sociales

Logo Facebook Logo Instagram
Icono flecha Ir a Loah Diseño de Interiores Quito
LOAH: Empresa de arquitectura, diseño y decoración en Quito Ecuador