fbpx
Logo LOAH blanco

YULAIKE

En algunas ocasiones el diseño tradicional de una cafetería no es lo más recomendado especialmente si te encuentras en una zona de mucha competencia, por tal motivo en este proyecto se decidió romper muchos de los paradigmas sobre el diseño de cafeterías.

Despues

Foto 1 del imagenesDespues del proyecto YULAIKE realizado por Loah Diseño interior Foto 2 del imagenesDespues del proyecto YULAIKE realizado por Loah Diseño interior Foto 3 del imagenesDespues del proyecto YULAIKE realizado por Loah Diseño interior Foto 4 del imagenesDespues del proyecto YULAIKE realizado por Loah Diseño interior Foto 5 del imagenesDespues del proyecto YULAIKE realizado por Loah Diseño interior

Antes

Foto 1 del imagenesAntes del proyecto YULAIKE realizado por Loah Diseño interior Foto 2 del imagenesAntes del proyecto YULAIKE realizado por Loah Diseño interior Foto 3 del imagenesAntes del proyecto YULAIKE realizado por Loah Diseño interior

Conceptualización

Foto 1 del imagenesConcepto del proyecto YULAIKE realizado por Loah Diseño interior

El concepto de marca indicaba que el oso se alimenta de miel, por tal motivo se decidió utilizar los elementos geométricos para representar panales de abejas, tanto negros como amarillos que son los colores representativos de la marca, el estilo lineal buscaba romper el esquema tradicional de una cafetería y transmitir un mensaje claro (arte + café)

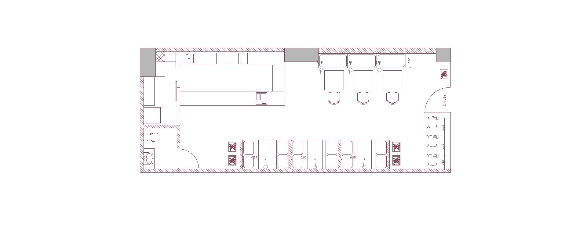
Distribución

Foto 1 del imagenesDistribucion del proyecto YULAIKE realizado por Loah Diseño interior Foto 2 del imagenesDistribucion del proyecto YULAIKE realizado por Loah Diseño interior Foto 3 del imagenesDistribucion del proyecto YULAIKE realizado por Loah Diseño interior

Visualización 3D

Foto 1 del imagenesVisualizacion del proyecto YULAIKE realizado por Loah Diseño interior Foto 2 del imagenesVisualizacion del proyecto YULAIKE realizado por Loah Diseño interior Foto 3 del imagenesVisualizacion del proyecto YULAIKE realizado por Loah Diseño interior Foto 4 del imagenesVisualizacion del proyecto YULAIKE realizado por Loah Diseño interior Foto 5 del imagenesVisualizacion del proyecto YULAIKE realizado por Loah Diseño interior

Render

Foto 1 del imagenesRender del proyecto YULAIKE realizado por Loah Diseño interior Foto 2 del imagenesRender del proyecto YULAIKE realizado por Loah Diseño interior Foto 3 del imagenesRender del proyecto YULAIKE realizado por Loah Diseño interior

Construcción

Foto 1 del imagenesConstruccion del proyecto YULAIKE realizado por Loah Diseño interior Foto 2 del imagenesConstruccion del proyecto YULAIKE realizado por Loah Diseño interior Foto 3 del imagenesConstruccion del proyecto YULAIKE realizado por Loah Diseño interior Foto 4 del imagenesConstruccion del proyecto YULAIKE realizado por Loah Diseño interior
Foto principal del proyecto YULAIKE despues del proyecto de LOAH Diseño interior

YULAIKE

Comercial

QUITO - ECUADOR

2019

Servicios

  • CONCEPTUALIZACIÓN DEL ESPACIO
  • DISTRIBUCIÓN
  • VISUALIZACIÓN 3D
  • RENDER
  • CONSTRUCCIÓN

Datos del proyecto

Duración

  • DISEÑO:5 DÍAS
  • CONSTRUCCIÓN:21 DÍAS

Equipo

  • DISEÑO:1 PERSONA
  • CONSTRUCCIÓN:9 PERSONAS

Metodología y herramientas utilizadas

SKETCHUP - LUMION - AUTOCAD - METODOLOGÍA PARA PROYECTOS ÁGILES

¿Tienes un proyecto parecido?

Si tienes dudas, o quisieras cotizar tu proyecto, conoce la metodología exacta en el siguiente enlace

Conoce la Metodología y Cotiza tu proyecto en menos de 2 minutos

Nuestras redes sociales

Logo Facebook Logo Instagram
Icono flecha Ir a Loah Diseño de Interiores Quito
LOAH: Empresa de arquitectura, diseño y decoración en Quito Ecuador